一、发动机引气系统工作原理
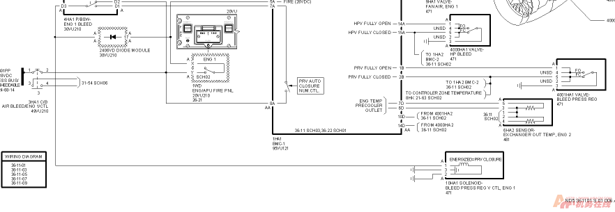
在发动机引气系统中,为了减少发动机的压力损失,通常是从发动机高压(HP)压气机的中间压力(IP)级(5级)引气。但当发动机低转速时,特别在飞机下降发动机在慢车状态时,IP 出口压力不足,将自动地从一个较高的压气机级(HP) 级(9级)引气。此时引气的传送是通过一个气动操作的蝶型活门HP 引气活门(HPV)(4000HA)完成的。它能够对压力进行调节,在上游没有压力存在的通常情况下,HPV在弹簧力的作用下处于关闭位置。打开活门所需要的最小压力是8psi。HPV在空气作用下限制下游静压在 36±3psi。当上流静压达到100±5 psi时,它由空气作用完全关闭。
HPV关闭时,空气直接从 IP 级通过装有二个拍板的IP引气单向活门(7110HM)引气。当 HPV打开时,HP级的压力进入气源管路并关闭IP引气单向活门。然后空气仅从HP级引出。HPV为气动操作活门,它通过一根感应管与引气调压活门PRV(4001HA)相连接。PRV安装在IP引气单向活门和HPV的管道下游。PRV同样由气动操作, 它能够将下游压力调节到44±1.75 psi,但打开或关闭是通过PRV控制器电磁线圈TLT(10HA)控制的。电磁线圈安装在引气预冷器交换器(7150HM)的管道下游。它通过PRV-TLT感应管确保当PRV由TLT控制关闭时,HPV也关闭。所以电磁线圈既控制PRV,同时又控制 HPV。当预冷器下游空气温度上升到235℃时,TLT使PRV减小开度以降低下游压力,如果温度继续升高达到245℃,引气压力将被限制在17.5PSI。
另一根感应管把TLT和传感器7HA连接到PRV上游管路。这是为了使TLT通过比较PRV上游和下游压力来确保系统的反流保护,当压差少于0.145 psi,TLT使PRV-TLT感应管通气使PRV关闭,当TLT感觉到的压力少于9.425psi时这个功能被抑制,这使得在发动机起动后当通过PRV的引气没有稳定时,PRV打开。
有多种情况可引起PRV自动关闭:
1. 预冷器下游超温(257±3℃),有60秒的延时
2. 吊架/机翼/机身管道渗漏造成附近区域超温
3. APU引气活门没有关闭
4. 相应的起动活门没有关闭
5. PRV下游超压(57±3 PSI),有15秒的延时也可以通过发动机火警和引气按钮电门人工关闭。
活门也可自己气动关闭:
1. 热融保险(活门内)(450±25℃)
2. 上游压力<8psi时由活门弹簧力气动关闭
在PRV 的下游安装有一个过压活门(OPV)(5HA),用以保护气源系统免遭过压的损伤,当上游管路压力达到75psi时, 过压活门开始关, 当压力达到85PSI时活门全关。当上游压力下降到35PSI左右时活门重新打开。
为了将温度保持在限制范围内,冷却空气管道内安装有一个风扇空气活门(FAV)(9HA),该活门提供风扇空气到预冷器交换器。FAV 由引气操作并通过一根感应管路连接到风扇空气活门控制热敏电门TCT(7170HM)。热敏电门安装在预冷器交换器的下游, 能够通过FAV来控制发动机的风扇冷却气流,使其温度控制在200 ℃(392℉)±15 ℃(27 ℉)。在靠近预冷器交换器的支架上安装有二个压力传感器。一个压力传感器PT(7HA)通过一个感应管连接到HP 引气活门气源管路的下游, 当其间压力小于23psi时(延时15秒)触发HPVFAULT警告,使高压活门失效在全关位。PT还能触发发动机引气不正常警告,如该传感器失效,是不影响ECAM压力指示的。另外一个引气调节压力传感器PR(8HA)通过一个感应管连接到PRV 气源管路的下游。调节压力大于57psi超过15秒,且PRV如果没有完全关闭触发AIRENG BLEED FAULT ECAM警告。在预冷器交换器吊架下游的气源管道的弯管内,安装有一个交换器出口温度传感器(6HA)。引气监控计算机(BMC)通过一个线缆与两个压力传感器相连,对它们进行监控。

引气系统原理图
二、主要故障分析
引气系统部件的故障主要有以下几类:
1活门打不开或者压力低
2活门不能完全打开
3活门关不死
根据各部件的工作原理具体分析,可以查找出原因所在,从而排除故障。
1)HPV
如果HPV活门打不开,首先HPV和PRV之间的信号管如果松动漏气的话会导致活门打不开,其次可能HPV本身存在问题,活门卡阻,或者HPV传送给BMC的位置指示是否存在问题。通过人工操纵HPV,然后比较ECAM上活门位置指示和HPV活门上的位置指示,如果两者相符,那么就对HPV进行测试,测试通过,就更换HPV和PRV之间的信号管,测试未过,更换HPV活门。指示不符,也更换HPV活门,若故障依然存在,考虑更换PT(7HA),如果7HA故障可能会给出错误的指令关闭HPV,最后若故障仍未排除,那么就是从HPV送给BMC位置信号的线路问题了。

HPV至BMC线路
如果HPV活门不能完全打开,首先考虑PT(7HA)的问题,做PT的测试,测试未过,更换PT,测试通过则可能HPV本身存在问题,对HPV进行测试,测试通过,就更换HPV和PRV之间的信号管,测试未过,更换HPV活门。
如果HPV活门关不上,通过人工操纵HPV,然后比较ECAM上活门位置指示和HPV活门上的位置指示,如果两者不符,就检查HPV送给BMC位置信号的线路,如果线路没问题,更换HPV。
总之,影响HPV活门指示的因素有:活门本身,HPV与PRV之间的信号管,指示线路,7HA。HPV的问题肯定与这些因素有关,只要逐个排查,就能找出故障原因。
2)PRV
如果PRV活门打不开,首先PRV和TLT之间的信号管如果松动漏气的话会导致活门打不开,其次可能PRV本身存在问题,活门卡阻或者存在内漏, 对PRV进行测试,测试通过,则说明PRV不存在卡阻问题,那么就再检查PRV和TLT之间的信号管是否渗漏,如果没有渗漏,则怀疑PRV活门或者TLT壳体可能存在内漏。检查信号管是否渗漏该从PRV处还是从TLT处断开检查呢?如果从PRV处断开,对信号管加压,若压力能保持,那么信号管和TLT壳体都不存在漏气,如果压力不能保持,再从TLT处断开信号管,将信号管另一头堵上,单独检查信号管是否漏气,如不漏气,就是TLT的问题了。
此外,8HA的故障也会给出错误指令造成PRV打不开,检查8HA是否故障相对简单,因为8HA是给ECAM指示的,因此只要接通APU引气检查两边引气压力,若相差不大,说明8HA正常,否则8HA故障。
所以,影响PRV活门打不开的因素有:活门本身卡阻,8HA,漏气,而漏气可能是TLT本身漏气,也可能是信号管,或者PRV本身内漏。
PRV活门关不上有两种情况:
1 PRV不能自动关闭,上面提过PRV自动关闭的条件,不能自动关闭的因素有:指令问题,也就是自动关闭的指令没有产生,这主要是集中在BMC上,其次,反馈问题,活门本身关闭了,但传输给BMC的位置信号有问题,这可能是活门本身内部问题或者传输线路的问题,最后就是活门本身和活门与TLT之间的控制问题了。
2 PRV不能人工关闭,人工关闭是通过发动机火警和引气按钮电门,这里主要说下引气按钮的控制,不能人工关闭的因素有:反馈问题,活门本身关闭了,但传输给BMC的位置信号有问题,这可能是活门本身内部问题或者传输线路的问题,指令问题,也就是人工关闭的指令没有产生,这主要是集中在TLT上,关闭引气按钮电门,TLT内部的电磁线圈应该上电,给TLT和PRV之间的信号管放气,若能听到电磁线圈嘀嗒声音,说明有电给TLT电磁线圈,那就可能是TLT,或者PRV机械故障,若没有嘀嗒声,说明从跳开关开始到TLT电磁线圈的电路不通或者TLT电磁线圈故障。最后就是活门本身和活门与TLT之间的控制问题了。

PRV控制线路
PRV的控制相比较HPV更复杂些,主要因为包含了电控,总而言之,影响PRV活门指示位置的因素有:PRV本身卡阻,PRV-TLT之间的信号管,TLT,8HA,7HA(因与TLT连接,影响TLT工作),指示线路,TLT供电线路,BMC。根据具体情况分析,不难找出故障源。
3)FAV
如果FAV活门不能完全打开,排故思路与PRV打不开类似,首先FAV和TCT之间的信号管如果松动漏气的话会导致活门不能完全打开,其次可能FAV本身存在问题,活门卡阻,对FAV进行测试,测试通过,则说明FAV不存在卡阻问题,那么就再检查FAV和TCT之间的信号管是否渗漏,如果没有渗漏,则怀疑FAV活门或者TCT壳体可能存在内漏。这里需要补充的是TCT气滤在雨后或清洗发动机时会因为灰尘而造成粘结,导致TCT内部阀门粘滞,从而通过气滤进入控制气路的空气量减少导致FAV的开度不够,TCT的调节出现间歇,引起引气温度调节失效,导致发动机引气高温。若故障依然存在,可能是FAV给BMC的位置指示信号有问题。
如果FAV活门关不上,首先更换TCT,然后检查FAV至BMC的位置指示,最后考虑更换活门本身和BMC。
影响FAV活门开关的因素有:活门本身,FAV-TCT信号管,TCT及其气滤,由于FAV也是气动控制的,较PRV要简单些。
结束语
引气故障的排故有一个前提:必须先检查相应的引气管路、传感器管路是否有渗漏。然后对各个活门测试之后再决定是否换件。根据原理排查,可以少走弯路。
来源:机务在线
© 版权声明
本站名称:
航修札记
本站网址:
https://www.aeroacm.com
期待与您碰撞思想、交流心得,微信:zhangqun-x。
所有素材均来自公开网络平台(含闲鱼、机务在线、民航相关网站等),不提供资料下载。
本站内容仅作为学习参考,不代表本站立场,亦不表示本站赞同其观点和对其真实性负责。
本站严禁发布、转载违法信息,如发现相关内容,请向站长举报。涉及侵权,请联系删除。
THE END









- 最新
- 最热
只看作者